一、沈阳市43中学和七中谁好1、沈阳市七中比较好。2、7中是沈河区的重点初中,两家教学质量都很高,不过7中已经连续多年蝉联沈阳市省重点高中升学率的第一名。此外,43中大部分学生都升入到省实验中学,7中的大部分学生则升入到市2中。3、扩展资料
三相电表接入总闸怎么接线 三相四线电表接线图
一、三相电表接入总闸怎么接线1、三相电表直接接入式:直接接入式也称为直通式接线,是在负载功能电表允许的范围内就可以直接接入,也就是电表的电流规格能够满足用户的需求,就可以使用该方法。(1)1、2称之为U,是三相四线电表的火线,接到A相进线端
一、三相电表接入总闸怎么接线
1、三相电表直接接入式:
直接接入式也称为直通式接线,是在负载功能电表允许的范围内就可以直接接入,也就是电表的电流规格能够满足用户的需求,就可以使用该方法。(1)1、2称之为U,是三相四线电表的火线,接到A相进线端,3接到A相出线端;
(2)4、5称之为V,是三相四线电表的火线,接到B相进线端,6接到B相出线端;
(3)7、8称之为W,是三相四线电表的火线,接到C相进线端,9接到C相出线端;
(4)A、B、C三相出线端接负载;
(5)10接零线,接后面的接线。
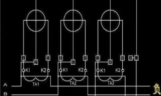
2、三相电表经互感器接入式:
三相电表测量大电流的单相电路的用电量时,因为线路流过的电流很大,例如300-500A,不可能采用直接接入法,应使用电流互感器进行电流变换,将大的电流换成小的电流,即电能表能承受的电流,然后再进行计量。(1)1、4、7要接到电流互感器二次侧的S1端,就是电流的进线端;
(2)3、6、9要接到电流互感器二次侧的S2端,就是电流的出线端;
(3)2、5、8分别接到A、B、C三相电源;
(4)10是接零线,一般为了安全起见,一定要将电流互感器S2端连接后接地。
注意事项: 各电流互感器的电流测量取样必须与其电压取样保持同相,即1、2、3是一组;4、5、6 是一组;7、8、9 是一组。
3、三相电表经电流、电压互感器接入式:
三相电表测量大电流和大电压时,因为电压和电流很大,不能直接接入,应使用电压和电流互感器进行电压、电流变换,把大电压、大电流换成小电压、小电流,即电能表能承受的电压、电流,再进行计量。
(1)1、4、7要接到电流互感器二次侧的S1端,就是电流的进线端;
(2)3、6、9要接到电流互感器二次侧的S2端,就是电流的出线端;
(3)2、5、8分别接到电压互感器;
(4)10要接零线,并且与电压互感器一起接地;
二、华立三相四线电表正确接法
华立三相四线电表的正确接法如下:
1. 首先,需要确认电表的额定电压和额定电流,以及所要接入的电路的电压和电流。
2. 根据电表额定电流和电路电流的大小,选择合适的电线截面积。一般来说,三相四线电表的电线截面积应该大于等于电表额定电流。
3. 将电表的U、V、W三个相线分别接入三相电路的对应相线上,接线顺序可以随意。
4. 将电表的N线接入电路的零线上,接线顺序需要与三个相线的接线顺序保持一致。
5. 确保所有接线牢固可靠,无松动现象。
6. 对电表进行功能测试,确保各项功能正常。
需要注意的是,华立三相四线电表的接线需要符合国家标准和安装要求,否则可能会影响电表的测量精度和安全性。为了保证接线质量,最好由专业的电工进行接线。
三、三相四线电表零线怎么接
1、三相四线电表的零线接法如下:
2、首先,将电表的零线接到电源系统的中性线上,通常中性线是蓝色的。
3、然后,将电表的三个相线分别接到电源系统的三个相线上,通常相线是红、黄、蓝三种颜色。
4、最后,将电表的接地线接到接地系统上,通常接地线是绿色或者黄绿相间的。
需要注意的是,在接线之前,一定要确保电源系统已经切断电源,并且在接线过程中要按照正确的接线方法进行操作,以免发生安全事故。如果您不熟悉电气知识,建议您请专业人士进行操作。
四、三相四线电表正确与错误接法
三相四线电表连接固定,正确接法应该是三相四线系统中AB、BC、CA三个相线依次连接电表的A、B、C三个相位线,同时连接电表的下行线PE线和零线N线。
如果错误接法,可能会导致电表不工作或者测量结果偏差较大。
为了避免错误接法,应该在接线前仔细阅读电表说明书,或者请专业电工安装。
五、三相四线电子式电能表如何安装接线喃
三相四线电表市面上常见的2种接法,一种是电流比较小的情况下直接接入,一种是电流过大时需要加互感器。
1、直接接入:147三个点和258三个点对应连在一起,上面有连接片。最后的10接零线。

2、带有电流互感器的接线:电表的147三个点接三个电流互感器的S1点,369三个点接电流互感器的S2点,并且三个S2连一起接地。258接ABC三相,最后一个点接零线。注意这个时候接点上是没有连接片的。
相关文章
- 详细阅读
-
自贡方特和成都欢乐谷哪个好玩 成都欢乐谷详细阅读
一、自贡方特和成都欢乐谷哪个好玩1、欢乐谷和方特两个地方都好玩。2、欢乐谷和方特是中国最著名的两个大型游玩主题乐园,同样拥有着丰富的游乐设施和各种刺激的游乐项目。3、欢乐谷全园共有七大主题区,主要以室外项目为主。4、方特以特色动漫主题文化为
-
四六级成绩什么时候查询 六级成绩什么时候公布详细阅读
一、四六级成绩什么时候查询1、大学英语四六级一年有两次考试,上半年的四六级考试时间是在每年的六月份,考试成绩公布时间是在考试结束后的两个月左右,基本上在八月份中下旬可以查成绩。 2、下半年的英语四六级考试时间是在十二月份进行,考试成绩查询时
-
2〇22年世界杯在那里举行 2022年有世界杯吗详细阅读
2〇22年世界杯在那里举行1、2022年世界杯实在卡塔尔举行,共有32支队伍参赛。2、经过几轮激战,拉美球队威风不减当年,欧洲球队也是显露出强劲的实力!3、最终阿根廷队获得此次世界杯冠军。2022年有世界杯吗1、肯定有 2、足球世界杯每4年
-
国庆绘画主题标语 国庆主题画优秀作品详细阅读
一、国庆绘画主题标语以下是一些的建议:1. 庆祝国庆,绘梦未来!2. 丹青绘祖国,翰墨庆华诞!3. 美丽中国,辉煌七十年!4. 盛世华章,画笔传情!5. 共庆华诞,丹青绘国魂!6. 祖国万岁,笔墨传情!7. 庆祝国庆,彩绘中华!8. 国庆盛
-
瑞士经济世界排名第几 世界足球队排名详细阅读
瑞士经济世界排名第几1、2021年上半年,GDP全球前20强榜单发生了较为明显的变化。其中,瑞士和澳大利亚在经济增长、货币升值的推动下,排名获得了提升,而巴西、俄罗斯、沙特阿拉伯和土耳其的排名出现了下滑。2、上半年,瑞士GDP提升至全球第1
-
东航321安全吗 321东航坠机事件详细阅读
一、东航321安全吗非常安全。321是欧洲空中客车公司生产的空客321的简称,空客飞机是目前世界上最先进的飞机之一(另外一个是美国波音公司生产的波音飞机),这两种型号的飞机也是世界上使用最多的机型,技术先进,乘坐舒适度高。空客宽体客机比32
-
山西大学内的跆拳道馆 山西跆拳道协会详细阅读
一、山西大学内的跆拳道馆在山西大学体操馆.位置:从山西大学文瀛食堂到山西大学西校门的路上,具体在清真餐厅旁,内设跆拳道场地及护具,以及培训班等.跆拳道馆刘老师很不错,我曾经体育学的就是搏击,老师很负责任,而且给人感觉不是那种不易接近的感觉二
-
玩游戏的手机的内存多少合适 适合玩游戏的手机详细阅读
一、玩游戏的手机的内存多少合适1、128G。2、一般来说,128G的存储空间对于手机而言,是足够的。大多数游戏都比较小,所以128G的存储空间就足够了。此外,游戏运行时也会释放一部分空间,所以是可以够用的。二、便宜耐用能打游戏的手机1、第一
-
c罗梅西进球数据对比谁进球多梅西和c罗谁欧冠冠军多成绩比较 c罗梅西场均进球数详细阅读
c罗梅西进球数据对比谁进球多梅西和c罗谁欧冠冠军多成绩比较1、欧冠赛场上,C罗的进球比梅西多。 2、C罗5次夺冠,梅西4次。 c罗梅西场均进球数1、C罗763粒进球,共用来1044场比赛,场均效率0.73个进球。梅西721粒进球用了897场
-
如何下载我的世界国际版 我结世界版详细阅读
一、如何下载我的世界国际版我的世界国际版下载攻略:我的世界国际版可以去MC下载站进行下载,这里有完整的我的世界国际版版本下载渠道,版本众多,随便玩家选择。下载方法如下: 1、PC端玩家可以在minecraft的官网购买国际版;2、iOS玩家
